管理No.F3-72
JR山陰本線「松江駅」徒歩6分 山陰有数の繁華街、伊勢宮の中心「へそ」にある飲食店居抜き物件!
賃料(坪単価)
10.23万円
(9,199円)
(9,199円)
面積
11.12坪
(36.78㎡)
(36.78㎡)
JR山陰本線「松江駅」徒歩6分
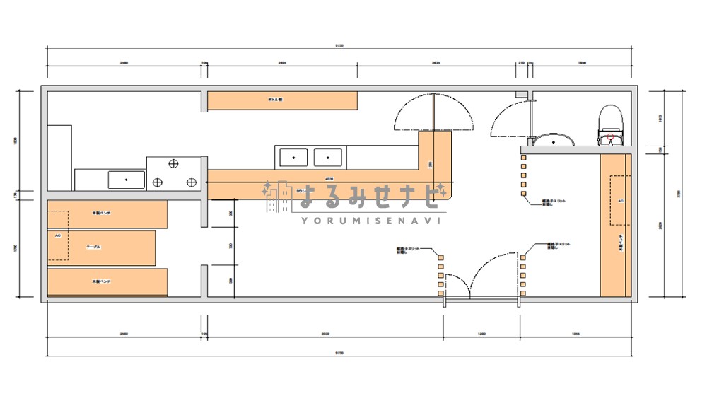
JR山陰本線「松江駅」駅近!本格的な厨房設備を備えたカウンター席、テーブル席を有する居抜き物件!!
0120-037-354
居抜き
カウンター有
おすすめ
2階
バー
ガールズバー
その他
物件情報
所在地
島根県松江市伊勢宮町
建物名
伊勢宮新天地2
所在階
2階
部屋番号
-
使用部分面積
36.78㎡
建物/建物構造
2階建て/鉄骨造鉄鋼板葺
エレベーター
-
築年数
-年
交通・最寄り駅
JR山陰本線「松江駅」徒歩6分
前テナント(業種)
フィリピン料理店舗
現況・状態
造作物有り(居抜き)
出店可能業種
応相談
賃料(税込)
102,300円
賃料坪単価(税込)
9,199円
管理費(税込)
賃料に含む
共益費(税込)
7,700円
引渡時期
即
保証金/償却
279,000円
敷金/敷引き
-
礼金
0円
造作譲渡代金
0円
契約期間
3年
更新料
-
解約予告
3ヵ月前
看板製作費
借主負担
看板使用料・
維持管理費
維持管理費
借主負担
鍵交換費
10,000円
店舗保険加入
15,000円(税込・年間)
賃貸保証会社加入
-
その他 業者指定項目
-
電気代
借主負担
水道代
借主負担
ガス代
借主負担
駐車場台数
無
ゴミ処理費
共益費込
害虫駆除費
借主負担
備考
-
周辺地図
お問い合わせ管理No.F3-72
当サイトを通じ物件をご契約される場合は、指定業者とのカラオケ・BGMサービス契約が必要です。詳しくは利用規約をご確認ください。
0120-037-354










