管理No.F2-165
「大雲寺前駅」駅近、「ニューセントラルプラザビル」4階のスナック居抜物件
賃料(坪単価)
13.36万円
(14,535円)
(14,535円)
面積
9.19坪
(30.40㎡)
(30.40㎡)
清輝橋線「大雲寺前駅」徒歩5分 清輝橋線「新西大寺町筋駅」徒歩2分
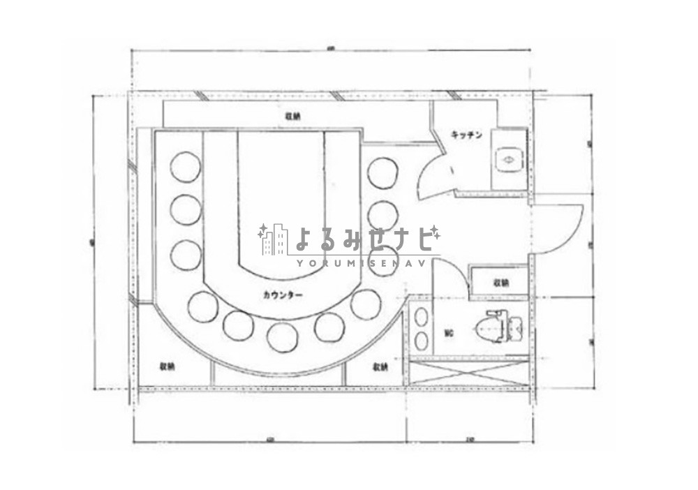
「大雲寺前駅」徒歩5分、カウンター有、「繁華街」中央町ど真ん中のビル!集客の期待できる好条件♪落ち着いた雰囲気の店内で内装も綺麗でおすすめの物件です。
0120-037-354
居抜き
カウンター有
おすすめ
3階以上
スナック
バー
ラウンジ
その他
物件情報
所在地
岡山県岡山市北区中央町
建物名
ニューセントラルプラザ
所在階
4階
部屋番号
401
使用部分面積
30.40㎡
建物/建物構造
-/鉄筋コンクリート造
エレベーター
1基
築年数
40年
交通・最寄り駅
清輝橋線「大雲寺前駅」徒歩5分 清輝橋線「新西大寺町筋駅」徒歩2分
前テナント(業種)
スナック
現況・状態
即入居可
出店可能業種
スナックなど
賃料(税込)
133,584円
賃料坪単価(税込)
14,535円
管理費(税込)
21,901円
共益費(税込)
0円
引渡時期
即時対応
保証金/償却
0円
敷金/敷引き
6ヵ月 932,910円
礼金
0円
造作譲渡代金
0円
契約期間
2年
更新料
相談
解約予告
-
看板製作費
-
看板使用料・
維持管理費
維持管理費
-
鍵交換費
-
店舗保険加入
要
賃貸保証会社加入
賃貸保証等:加入要(保証会社加入の場合、敷金の相談可。初年度は月額賃料80%~ 次年度より賃料の10%~)
その他 業者指定項目
-
電気代
-
水道代
-
ガス代
-
駐車場台数
-
ゴミ処理費
-
害虫駆除費
-
備考
-
周辺地図
お問い合わせ管理No.F2-165
当サイトを通じ物件をご契約される場合は、指定業者とのカラオケ・BGMサービス契約が必要です。詳しくは利用規約をご確認ください。
0120-037-354







