このページの先頭です
管理No.G1-315

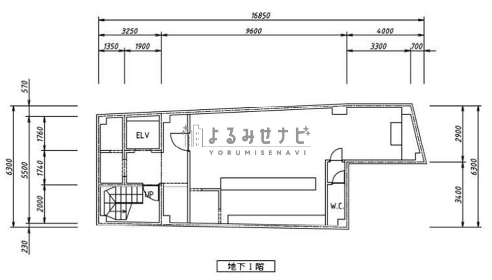
「西新駅」駅近、「カワナミ福岡西新ビル」地下1階のBAR居抜物件!!

賃料(坪単価)
25.30万円
(9,301円)
面積
27.20
(89.94㎡)
福岡市営地下鉄空港線「西新駅」徒歩2分 「西新4丁目」バス停から徒歩1分

「西新駅」徒歩2分、人気の西新エリア

居抜き
カウンター有
おすすめ
地下
バー

物件情報

所在地
福岡県福岡市早良区西新4丁目
建物名
カワナミ福岡西新ビル
所在階
地下1階
部屋番号
-
使用部分面積
89.94㎡
建物/建物構造
地下1階付4階建/RC造
エレベーター
1基
築年数
35年
交通・最寄り駅
福岡市営地下鉄空港線「西新駅」徒歩2分 「西新4丁目」バス停から徒歩1分
前テナント(業種)
BAR
現況・状態
営業中
出店可能業種
賃料(税込)
253,000円
賃料坪単価(税込)
9,301円
管理費(税込)
0円
共益費(税込)
11,000円
引渡時期
相談
保証金/償却
0円
敷金/敷引き
0円
礼金
2ヵ月 506,000円
造作譲渡代金
5,000,000円
契約期間
3年
更新料
要確認
解約予告
-
看板製作費
-
看板使用料・
維持管理費
-
鍵交換費
-
店舗保険加入
-
賃貸保証会社加入
-
その他 業者指定項目
-
電気代
-
水道代
-
ガス代
-
駐車場台数
-
ゴミ処理費
-
害虫駆除費
-
備考
業種、業態により賃料条件に変更が生じる場合があります。賃料借契約の締結時には賃料1ヵ月分の仲介手数料を申し受けます。
居抜契約成立時には一律25万円+税の居抜手数料を別途申し受けます。

周辺地図

お問い合わせ
管理No.G1-315

当サイトを通じ物件をご契約される場合は、指定業者とのカラオケ・BGMサービス契約が必要です。詳しくは利用規約をご確認ください。

この記事をシェアする

このurlをコピー
TOP九州・沖縄福岡県城南区・早良区・西区・糸島早良区 > 「西新駅」駅近、「カワナミ福岡西新ビル」地下1階のBAR居抜物件!!