管理No.G1-335
「櫛田神社前」駅近、リトル中州ビル5階の居抜物件
賃料(坪単価)
18.70万円
(21,974円)
(21,974円)
面積
8.51坪
(28.15㎡)
(28.15㎡)
福岡市営地下鉄七隈線「櫛田神社前駅」徒歩3分
福岡市営地下鉄空港線「中洲川端駅」徒歩6分
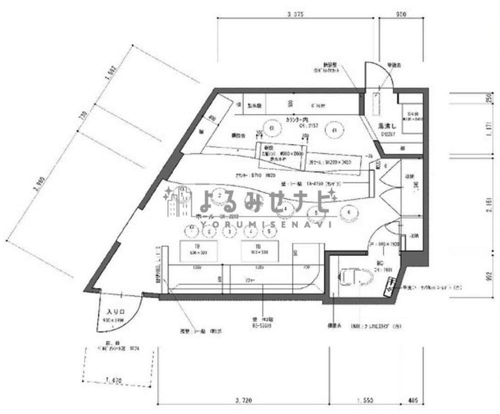
内装美麗!バー居抜き物件!カウンターメインで使いやすい箱です! カウンター6席 ボックス2つ バー居抜き
0120-037-354
居抜き
カウンター有
3階以上
スナック
バー
物件情報
所在地
福岡県福岡市博多区中洲2丁目
建物名
リトル中洲ビル
所在階
5階
部屋番号
501
使用部分面積
28.15㎡
建物/建物構造
地下1階地上6階建/RC造
エレベーター
1基
築年数
51年
交通・最寄り駅
福岡市営地下鉄七隈線「櫛田神社前駅」徒歩3分
福岡市営地下鉄空港線「中洲川端駅」徒歩6分
前テナント(業種)
バー
現況・状態
営業中
出店可能業種
賃料(税込)
187,000円
賃料坪単価(税込)
21,974円
管理費(税込)
-
共益費(税込)
30,928円
引渡時期
相談
保証金/償却
-
敷金/敷引き
1,000,000円/税込賃料3ヵ月分
礼金
-
造作譲渡代金
4,400,000円
契約期間
定期借家2年
更新料
要確認
解約予告
3ヵ月前
看板製作費
-
看板使用料・
維持管理費
維持管理費
-
鍵交換費
-
店舗保険加入
要加入
賃貸保証会社加入
要加入
その他 業者指定項目
-
電気代
-
水道代
-
ガス代
-
駐車場台数
無し
ゴミ処理費
実費
害虫駆除費
-
備考
町内会費が月額1,500円。 居抜き手数料として居抜料の10%。
短期解約違約金:1年未満賃料2ヶ月分、1年以上2年未満賃料1ヶ月分。
短期解約違約金:1年未満賃料2ヶ月分、1年以上2年未満賃料1ヶ月分。
周辺地図
お問い合わせ管理No.G1-335
当サイトを通じ物件をご契約される場合は、指定業者とのカラオケ・BGMサービス契約が必要です。詳しくは利用規約をご確認ください。
0120-037-354





