管理No.D3-224
「桜橋駅」駅近、桜木町中心通り「第一三愛ビル」4階の居抜き物件!
賃料(坪単価)
13.20万円
(9,435円)
(9,435円)
面積
13.99坪
(46.28㎡)
(46.28㎡)
富山地鉄富山都心線・富山地鉄市内線「桜橋駅」徒歩3分 富山地鉄富山都心線・富山地鉄市内線「荒町駅」徒歩5分
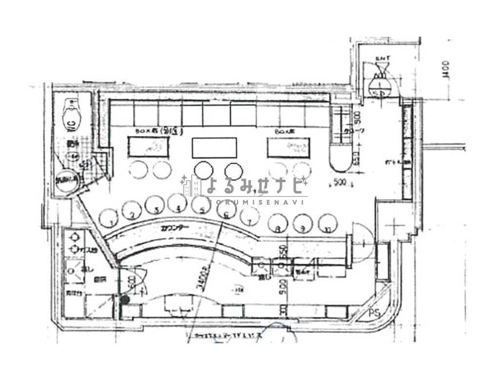
「桜橋駅」徒歩3分、カウンター有、黒と白を基調とした落ち着いた雰囲気の店内が特徴です!
0120-037-354
居抜き
カウンター有
おすすめ
3階以上
スナック
バー
ラウンジ
物件情報
所在地
富山県富山市桜木町
建物名
第一三愛ビル
所在階
4階
部屋番号
N
使用部分面積
46.28㎡
建物/建物構造
5階建/RC造
エレベーター
1基
築年数
39年
交通・最寄り駅
富山地鉄富山都心線・富山地鉄市内線「桜橋駅」徒歩3分 富山地鉄富山都心線・富山地鉄市内線「荒町駅」徒歩5分
前テナント(業種)
スナック
現況・状態
空
出店可能業種
賃料(税込)
132,000円
賃料坪単価(税込)
9,435円
管理費(税込)
0円
共益費(税込)
15,000円
引渡時期
即日
保証金/償却
0円
敷金/敷引き
2ヵ月
礼金
0円
造作譲渡代金
0円
契約期間
3年
更新料
-
解約予告
-
看板製作費
-
看板使用料・
維持管理費
維持管理費
-
鍵交換費
-
店舗保険加入
火災保険加入必須(18,000円/2年)
賃貸保証会社加入
-
その他 業者指定項目
-
電気代
-
水道代
-
ガス代
-
駐車場台数
無し
ゴミ処理費
2,750円/月
害虫駆除費
3,630円/月
備考
退去時ハウスクリーニング要
周辺地図
お問い合わせ管理No.D3-224
当サイトを通じ物件をご契約される場合は、指定業者とのカラオケ・BGMサービス契約が必要です。詳しくは利用規約をご確認ください。
0120-037-354












