管理No.C11-85
「柏駅」駅近、サンサン通り沿い「レイヴェル31」2階の居抜き物件
賃料(坪単価)
130.20万円
(19,800円)
(19,800円)
面積
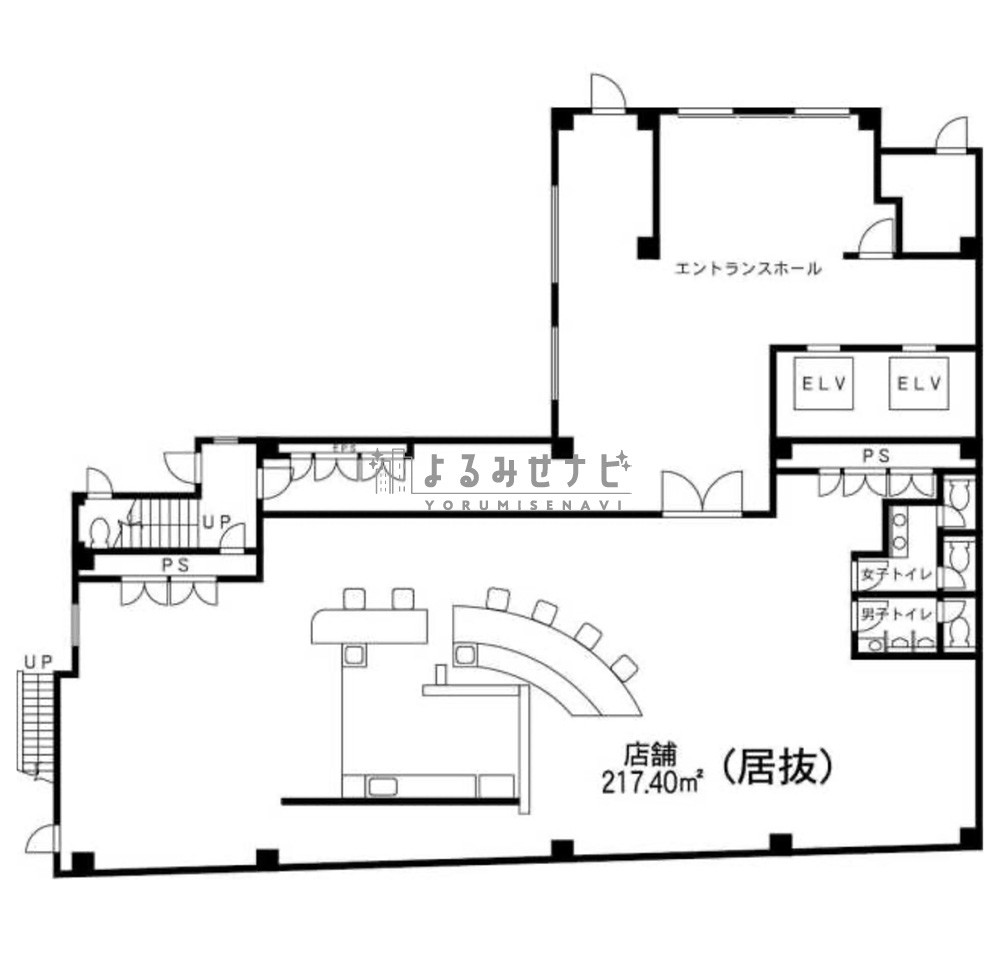
65.76坪
(217.40㎡)
(217.40㎡)
JR常磐線・東武野田線「柏駅」徒歩3分
「柏駅」東口徒歩3分、カウンター有、24時間利用可、フリーレント3ヵ月、旧飲食店、内部造作無償譲渡
0120-037-354
居抜き
カウンター有
2階
スナック
バー
ガールズバー
クラブ
ラウンジ
キャバクラ
ホストクラブ
パブ
物件情報
所在地
千葉県柏市柏2丁目
建物名
レイヴェル31
所在階
2階
部屋番号
-
使用部分面積
217.40㎡
建物/建物構造
6階建/鉄骨造
エレベーター
有り
築年数
21年
交通・最寄り駅
JR常磐線・東武野田線「柏駅」徒歩3分
前テナント(業種)
飲食店
現況・状態
居抜き
出店可能業種
賃料(税込)
1,302,048円
賃料坪単価(税込)
19,800円
管理費(税込)
224,242円
共益費(税込)
0円
引渡時期
即時
保証金/償却
10ヵ月
敷金/敷引き
0円
礼金
1ヵ月 1,302,048円
造作譲渡代金
0円
契約期間
3年
更新料
新築料1ヵ月
解約予告
-
看板製作費
-
看板使用料・
維持管理費
維持管理費
-
鍵交換費
-
店舗保険加入
加入要/店舗総合保険
賃貸保証会社加入
-
その他 業者指定項目
-
電気代
-
水道代
-
ガス代
-
駐車場台数
無し
ゴミ処理費
-
害虫駆除費
-
備考
-
周辺地図
お問い合わせ管理No.C11-85
当サイトを通じ物件をご契約される場合は、指定業者とのカラオケ・BGMサービス契約が必要です。詳しくは利用規約をご確認ください。
0120-037-354





