管理No.A3-376
「広瀬通駅」駅近、稲荷小路沿い「19フジビル」7階のスケルトン物件
賃料(坪単価)
29.70万円
(9,900円)
(9,900円)
面積
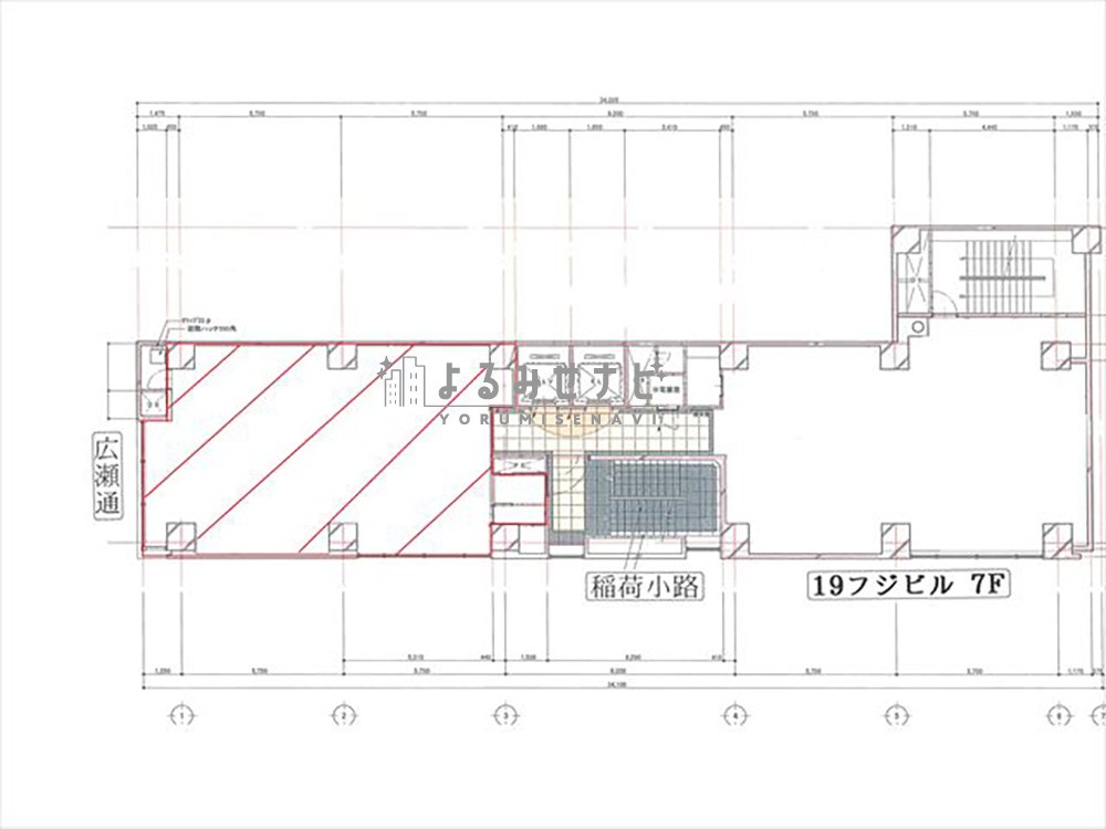
30.00坪
(99.18㎡)
(99.18㎡)
仙台市営地下鉄南北線「広瀬通駅」徒歩4分
「広瀬通駅」徒歩4分、30坪のスケルトン物件 フリーレント2カ月!※風俗営業不可
0120-037-354
おすすめ
3階以上
その他
物件情報
所在地
宮城県仙台市青葉区国分町2丁目
建物名
19フジビル
所在階
7階
部屋番号
-
使用部分面積
99.18㎡
建物/建物構造
地下1階付地上9階建/SRC造
エレベーター
2基
築年数
51年
交通・最寄り駅
仙台市営地下鉄南北線「広瀬通駅」徒歩4分
前テナント(業種)
飲食店
現況・状態
空/スケルトン
出店可能業種
応相談
賃料(税込)
297,000円
賃料坪単価(税込)
9,900円
管理費(税込)
99,000円
共益費(税込)
-
引渡時期
応相談
保証金/償却
-
敷金/敷引き
800,000円
礼金
270,000円
造作譲渡代金
0円
契約期間
定期借家
更新料
-
解約予告
-
看板製作費
-
看板使用料・
維持管理費
維持管理費
看板灯代:8,500円/月
鍵交換費
-
店舗保険加入
火災保険要加入
賃貸保証会社加入
必須
その他 業者指定項目
賃貸保証会社指定あり
電気代
-
水道代
-
ガス代
-
駐車場台数
無し
ゴミ処理費
-
害虫駆除費
-
備考
仲介手数料賃料1ヵ月分あり/スケルトン物件/定期借家契約/風俗営業不可
鍵交換代や町内会費などその他費用がかかる場合がございます。
鍵交換代や町内会費などその他費用がかかる場合がございます。
周辺地図
お問い合わせ管理No.A3-376
当サイトを通じ物件をご契約される場合は、指定業者とのカラオケ・BGMサービス契約が必要です。詳しくは利用規約をご確認ください。
0120-037-354

