管理No.A3-461
「広瀬通駅」徒歩9分、国分町「民平ビル」地下1階のおすすめ物件
賃料(坪単価)
44.00万円
(11,683円)
(11,683円)
面積
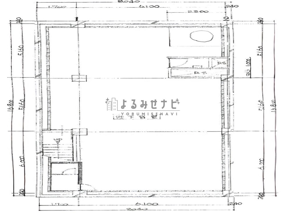
37.66坪
(124.50㎡)
(124.50㎡)
仙台地下鉄南北線南北線「広瀬通駅」徒歩9分
国分町中心部 37.66坪の地下1階物件♪
0120-037-354
おすすめ
地下
スナック
バー
ガールズバー
クラブ
ラウンジ
キャバクラ
パブ
その他
物件情報
所在地
宮城県仙台市青葉区国分町2丁目
建物名
民平ビル
所在階
地下1階
部屋番号
-
使用部分面積
124.50㎡
建物/建物構造
地下1階付5階建/RC造
エレベーター
有り
築年数
53年
交通・最寄り駅
仙台地下鉄南北線南北線「広瀬通駅」徒歩9分
前テナント(業種)
バー・クラブ・スナック 等
現況・状態
居住中
出店可能業種
応相談
賃料(税込)
440,000円
賃料坪単価(税込)
11,683円
管理費(税込)
-
共益費(税込)
-
引渡時期
応相談
保証金/償却
0円
敷金/敷引き
2,000,000円
礼金
0円
造作譲渡代金
0円
契約期間
2年
更新料
-
解約予告
-
看板製作費
要確認
看板使用料・
維持管理費
維持管理費
要確認
鍵交換費
-
店舗保険加入
必須
賃貸保証会社加入
必須
その他 業者指定項目
-
電気代
-
水道代
-
ガス代
-
駐車場台数
無し
ゴミ処理費
-
害虫駆除費
-
備考
仲介手数料賃料1ヵ月分あり/年数回設備調査費用等発生あり
鍵交換代や町内会費などその他費用がかかる場合がございます。
鍵交換代や町内会費などその他費用がかかる場合がございます。
周辺地図
お問い合わせ管理No.A3-461
当サイトを通じ物件をご契約される場合は、指定業者とのカラオケ・BGMサービス契約が必要です。詳しくは利用規約をご確認ください。
0120-037-354

