管理No.E5-218
「北新地駅」駅近、北新地上通り沿い「GOTS北新地ビル1号館」4階のリース物件
賃料(坪単価)
36.08万円
(21,591円)
(21,591円)
面積
16.71坪
(55.24㎡)
(55.24㎡)
JR東西線「北新地駅」徒歩6分 大阪メトロ四つ橋線「西梅田駅」徒歩10分 JR京都線・JR神戸線・JR宝塚線「大阪駅」徒歩約11分
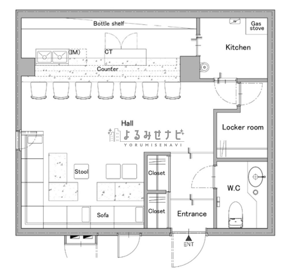
「北新地駅」徒歩6分、カウンター有、四ツ橋筋スグ、エアコン・冷蔵庫・電気温水器完備
0120-037-354
カウンター有
おすすめ
3階以上
スナック
バー
クラブ
ラウンジ
キャバクラ
その他
物件情報
所在地
大阪府大阪市北区曽根崎新地1丁目
建物名
GOTS北新地ビル1号館
所在階
4階
部屋番号
403
使用部分面積
55.24㎡
建物/建物構造
地下1階地上6階建/鉄骨・鉄筋コンクリート造
エレベーター
1基
築年数
46年
交通・最寄り駅
JR東西線「北新地駅」徒歩6分 大阪メトロ四つ橋線「西梅田駅」徒歩10分 JR京都線・JR神戸線・JR宝塚線「大阪駅」徒歩約11分
前テナント(業種)
バー
現況・状態
空室
出店可能業種
賃料(税込)
360,800円
賃料坪単価(税込)
21,591円
管理費(税込)
36,300円
共益費(税込)
-
引渡時期
相談
保証金/償却
3,080,000円
敷金/敷引き
-
礼金
0円
造作譲渡代金
0円
契約期間
3年
更新料
-
解約予告
-
看板製作費
-
看板使用料・
維持管理費
維持管理費
-
鍵交換費
-
店舗保険加入
-
賃貸保証会社加入
-
その他 業者指定項目
-
電気代
-
水道代
-
ガス代
-
駐車場台数
-
ゴミ処理費
-
害虫駆除費
-
備考
エアコン・冷蔵庫・電気温水器完備
周辺地図
お問い合わせ管理No.E5-218
当サイトを通じ物件をご契約される場合は、指定業者とのカラオケ・BGMサービス契約が必要です。詳しくは利用規約をご確認ください。
0120-037-354



