管理No.C1-239
新築予定ビル・2026年5月竣工予定!銀座7丁目!花椿通り沿い!希少な小箱!
賃料(坪単価)
42.52万円
(47,300円)
(47,300円)
面積
8.99坪
(29.72㎡)
(29.72㎡)
東京メトロ銀座線「銀座駅」徒歩9分 JR山手線「新橋駅」徒歩7分
新築予定ビル・2026年5月竣工予定!銀座7丁目!花椿通り沿い!バー・クラブおすすめ!スケルトン!希少な小箱!
0120-037-354
おすすめ
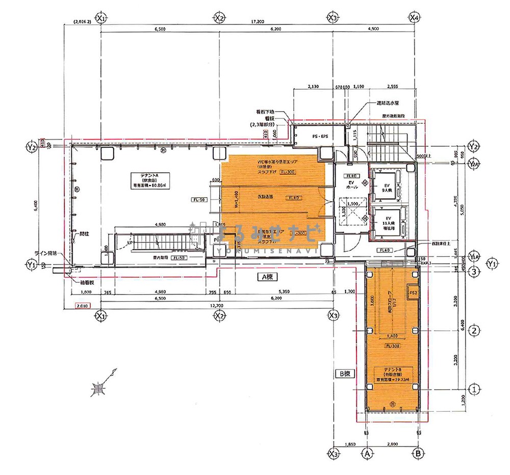
2階
スナック
バー
クラブ
ラウンジ
物件情報
所在地
東京都中央区銀座7丁目
建物名
ZX GINZA 7
所在階
2階
部屋番号
B棟
使用部分面積
29.72㎡
建物/建物構造
11階建/鉄骨造(耐火構造)
エレベーター
2基
築年数
-年
交通・最寄り駅
東京メトロ銀座線「銀座駅」徒歩9分 JR山手線「新橋駅」徒歩7分
前テナント(業種)
新築スケルトン予定
現況・状態
スケルトン予定
出店可能業種
クラブ・ラウンジ・バー・スナック等
賃料(税込)
425,227円
賃料坪単価(税込)
47,300円
管理費(税込)
賃料に含む
共益費(税込)
賃料に含む
引渡時期
2026年5月以降未定
保証金/償却
要確認
敷金/敷引き
10ヵ月
礼金
0円
造作譲渡代金
0円
契約期間
定期借家相談
更新料
要確認
解約予告
要確認
看板製作費
-
看板使用料・
維持管理費
維持管理費
看板掲載料月額11,000円
鍵交換費
-
店舗保険加入
火災保険要加入
賃貸保証会社加入
保証会社相談(貸主指定)
その他 業者指定項目
不動産会社仲介手数料
電気代
-
水道代
-
ガス代
-
駐車場台数
-
ゴミ処理費
-
害虫駆除費
-
備考
契約期間相談:定期借家契約・解約料:賃料の1ヵ月(別途消費税)
2025年4月時点での計画に基づくものであり面積等今後変更となる場合があります。
2025年4月時点での計画に基づくものであり面積等今後変更となる場合があります。
周辺地図
お問い合わせ管理No.C1-239
当サイトを通じ物件をご契約される場合は、指定業者とのカラオケ・BGMサービス契約が必要です。詳しくは利用規約をご確認ください。
0120-037-354

