管理No.C8-184
「伊勢佐木長者町駅」徒歩圏内、「KGRBLD伊勢佐木町」5階の空き物件
賃料(坪単価)
17.00万円
(12,039円)
(12,039円)
面積
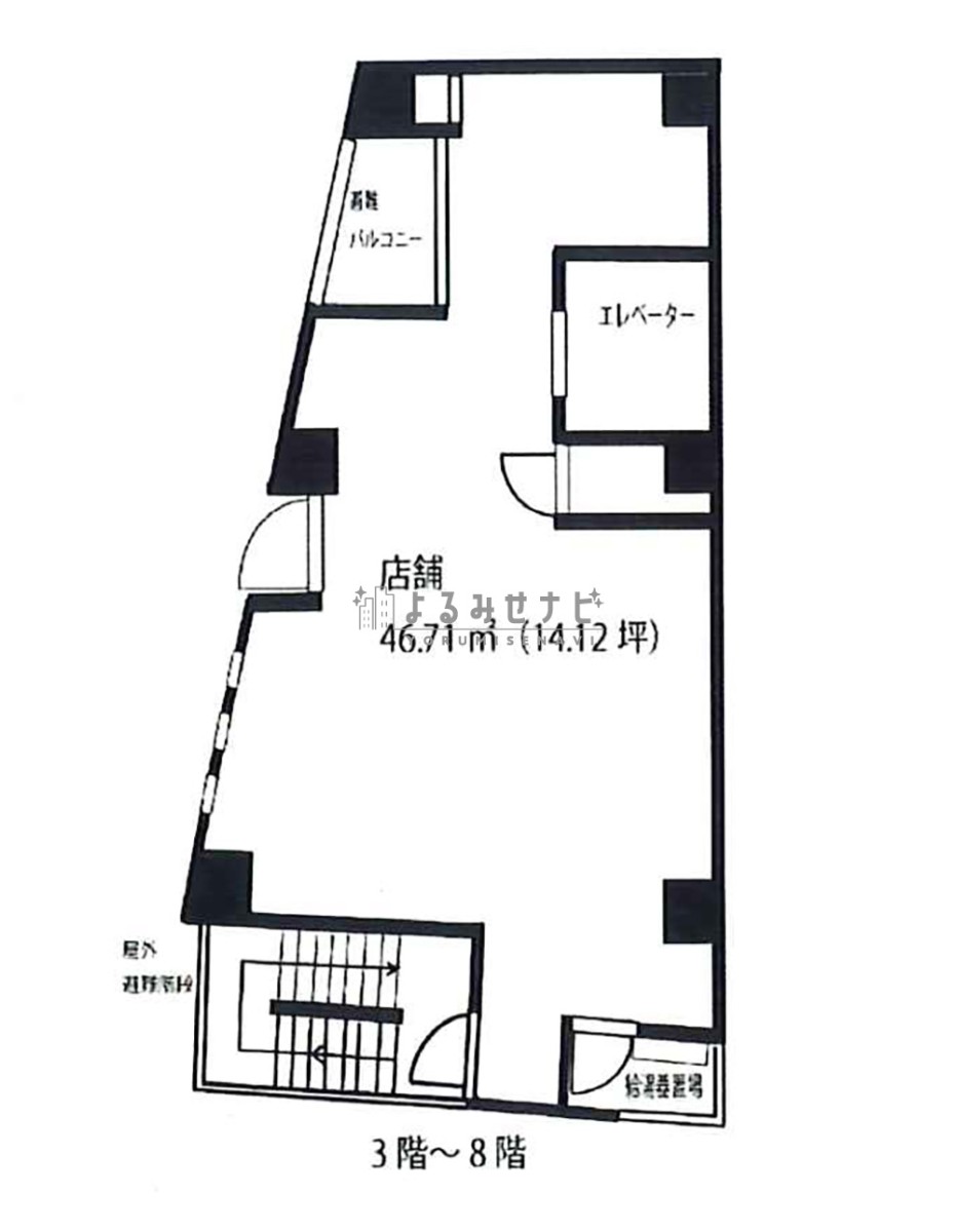
14.12坪
(46.71㎡)
(46.71㎡)
横浜市営地下鉄ブルーライン「伊勢佐木長者町駅」徒歩7分 「阪東橋駅」徒歩5分 京急本線「黄金町駅」徒歩7分
「伊勢佐木長者町」徒歩7分、イセザキ・モール!バーおすすめ店舗!!
0120-037-354
おすすめ
3階以上
バー
物件情報
所在地
神奈川県横浜市中区伊勢佐木町5丁目
建物名
KGR×BLD 伊勢佐木町
所在階
5階
部屋番号
-
使用部分面積
46.71㎡
建物/建物構造
8階建/鉄筋コンクリート造
エレベーター
1基
築年数
4年
交通・最寄り駅
横浜市営地下鉄ブルーライン「伊勢佐木長者町駅」徒歩7分 「阪東橋駅」徒歩5分 京急本線「黄金町駅」徒歩7分
前テナント(業種)
バー
現況・状態
スケルトン
出店可能業種
賃料(税込)
170,000円
賃料坪単価(税込)
12,039円
管理費(税込)
賃料に含む
共益費(税込)
賃料に含む
引渡時期
要相談
保証金/償却
6ヵ月 1,020,000円
敷金/敷引き
0円
礼金
0円
造作譲渡代金
0円
契約期間
3年
更新料
新賃料1.1ヵ月
解約予告
-
看板製作費
-
看板使用料・
維持管理費
維持管理費
-
鍵交換費
-
店舗保険加入
-
賃貸保証会社加入
保証会社加入必須
その他 業者指定項目
-
電気代
-
水道代
-
ガス代
-
駐車場台数
無し
ゴミ処理費
-
害虫駆除費
-
備考
-
周辺地図
お問い合わせ管理No.C8-184
当サイトを通じ物件をご契約される場合は、指定業者とのカラオケ・BGMサービス契約が必要です。詳しくは利用規約をご確認ください。
0120-037-354





