管理No.D1-207
「栄駅」徒歩3分、「ピボットオーラム」6階B号室の好立地物件
賃料(坪単価)
38.15万円
(22,000円)
(22,000円)
面積
17.34坪
(57.33㎡)
(57.33㎡)
東山線「栄駅」徒歩3分 名城線「栄駅」徒歩3分
エレベーター2基あり
0120-037-354
おすすめ
3階以上
スナック
クラブ
ラウンジ
物件情報
所在地
愛知県名古屋市中区錦3丁目
建物名
ピボットオーラム
所在階
6階
部屋番号
B号室
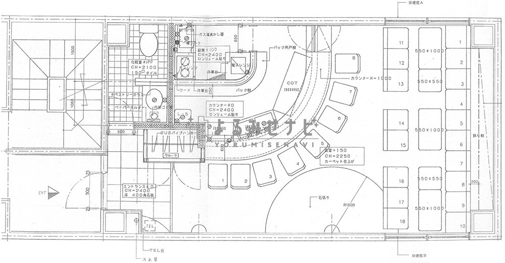
使用部分面積
57.33㎡
建物/建物構造
7階建/鉄骨造
エレベーター
2基
築年数
35年
交通・最寄り駅
東山線「栄駅」徒歩3分 名城線「栄駅」徒歩3分
前テナント(業種)
飲食店
現況・状態
空
出店可能業種
スナック・クラブ・ラウンジ
賃料(税込)
381,480円
賃料坪単価(税込)
22,000円
管理費(税込)
0円
共益費(税込)
66,759円
引渡時期
相談
保証金/償却
0円
敷金/敷引き
8ヵ月
礼金
0円
造作譲渡代金
0円
契約期間
2年
更新料
0円
解約予告
-
看板製作費
110,000円(税込)
看板使用料・
維持管理費
維持管理費
5,500円/月(税込)
鍵交換費
-
店舗保険加入
-
賃貸保証会社加入
保証会社利用必須
その他 業者指定項目
-
電気代
-
水道代
-
ガス代
-
駐車場台数
-
ゴミ処理費
-
害虫駆除費
-
備考
償却率:1年未満 100% 3年未満 80% 20年未満 50% 20年以上 0%
電気・水道料金・ゴミ処理費・共用伝統料金負担金あり
電気・水道料金・ゴミ処理費・共用伝統料金負担金あり
周辺地図
お問い合わせ管理No.D1-207
当サイトを通じ物件をご契約される場合は、指定業者とのカラオケ・BGMサービス契約が必要です。詳しくは利用規約をご確認ください。
0120-037-354

