管理No.D1-209
「栄駅」徒歩3分、ソシアルビル4階A号室の好立地物件
賃料(坪単価)
30.80万円
(22,000円)
(22,000円)
面積
14.00坪
(46.29㎡)
(46.29㎡)
東山線「栄駅」徒歩3分 名城線「栄駅」徒歩3分
リース店舗 エレベーターあり
0120-037-354
リース店舗
3階以上
スナック
クラブ
ラウンジ
物件情報
所在地
愛知県名古屋市中区錦3丁目
建物名
ソシアルビル(愛知県)
所在階
4階
部屋番号
A号室
使用部分面積
46.29㎡
建物/建物構造
6階建/鉄筋コンクリート造
エレベーター
1基
築年数
49年
交通・最寄り駅
東山線「栄駅」徒歩3分 名城線「栄駅」徒歩3分
前テナント(業種)
飲食店
現況・状態
空
出店可能業種
スナック・クラブ・ラウンジ
賃料(税込)
308,000円
賃料坪単価(税込)
22,000円
管理費(税込)
0円
共益費(税込)
46,200円
引渡時期
相談
保証金/償却
0円
敷金/敷引き
10ヵ月
礼金
0円
造作譲渡代金
0円
契約期間
2年
更新料
0円
解約予告
-
看板製作費
-
看板使用料・
維持管理費
維持管理費
7,130円/月(税込)
鍵交換費
-
店舗保険加入
-
賃貸保証会社加入
保証会社利用必須
その他 業者指定項目
-
電気代
-
水道代
-
ガス代
-
駐車場台数
無し
ゴミ処理費
-
害虫駆除費
-
備考
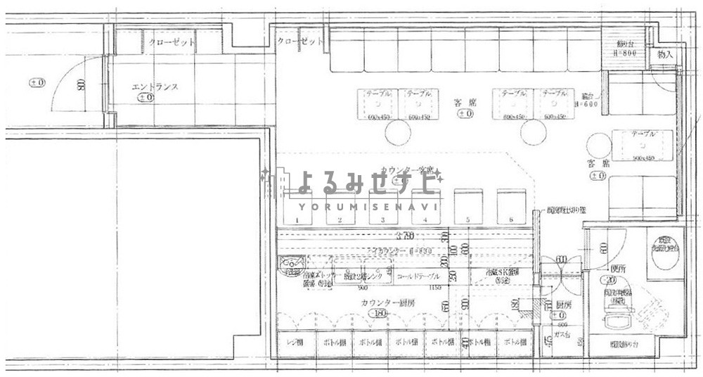
償却率:1年未満 100% 3年未満 80% 3年以上 70% 空調機・冷蔵庫等設備有 現状:ソファ・テーブル等は無し(図面は参考) 参考図面を基本として改装予定
定期建物賃貸借契約 電力費・水道料:変動でご請求 電気保安協会分担金:4,074円/月(税込) 町内会費:800円/月
定期建物賃貸借契約 電力費・水道料:変動でご請求 電気保安協会分担金:4,074円/月(税込) 町内会費:800円/月
周辺地図
お問い合わせ管理No.D1-209
当サイトを通じ物件をご契約される場合は、指定業者とのカラオケ・BGMサービス契約が必要です。詳しくは利用規約をご確認ください。
0120-037-354

