管理No.D1-210
「栄駅」駅近、「NANEI NISHIKI Bldg.」4階の居抜き物件
賃料(坪単価)
16.50万円
(27,049円)
(27,049円)
面積
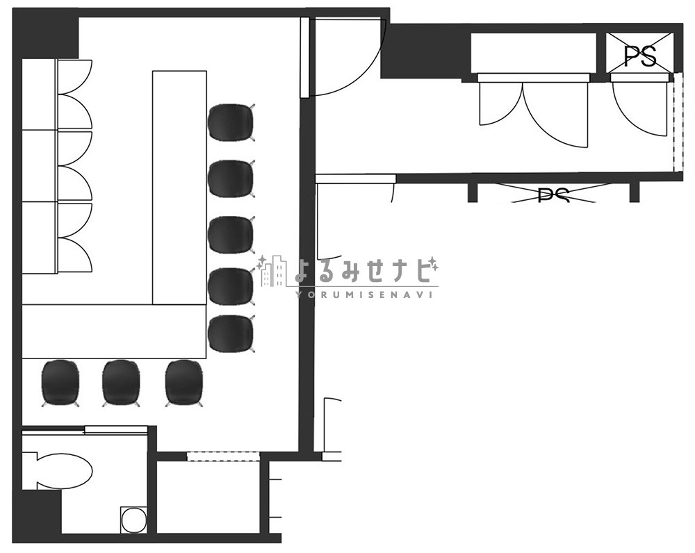
6.10坪
(20.17㎡)
(20.17㎡)
東山線「栄駅」徒歩3分 名城線「栄駅」徒歩3分
居抜き店舗 エレベーターあり
0120-037-354
居抜き
3階以上
スナック
物件情報
所在地
愛知県名古屋市中区錦3丁目
建物名
NANEI NISHIKI Bldg.
所在階
4階
部屋番号
D号室
使用部分面積
20.17㎡
建物/建物構造
7階建/RC造
エレベーター
有り
築年数
49年
交通・最寄り駅
東山線「栄駅」徒歩3分 名城線「栄駅」徒歩3分
前テナント(業種)
飲食店
現況・状態
空
出店可能業種
スナック
賃料(税込)
165,000円
賃料坪単価(税込)
27,049円
管理費(税込)
0円
共益費(税込)
12,100円
引渡時期
相談
保証金/償却
0円
敷金/敷引き
8ヵ月
礼金
0円
造作譲渡代金
0円
契約期間
2年
更新料
0円
解約予告
-
看板製作費
-
看板使用料・
維持管理費
維持管理費
5,500円/月(税込)
鍵交換費
-
店舗保険加入
-
賃貸保証会社加入
保証会社利用必須(全保連ほか)
その他 業者指定項目
-
電気代
基本料金:13200円/月(税込)
水道代
-
ガス代
-
駐車場台数
-
ゴミ処理費
5,500円/月(税込)
害虫駆除費
-
備考
新装物件 完成済 スナック店舗向き 償却率:1年未満 100% 3年未満 80% 3年以上 50%
電気水道:検針によるご請求 エアコン1基あり 面積は変動する場合があります。
電気水道:検針によるご請求 エアコン1基あり 面積は変動する場合があります。
周辺地図
お問い合わせ管理No.D1-210
当サイトを通じ物件をご契約される場合は、指定業者とのカラオケ・BGMサービス契約が必要です。詳しくは利用規約をご確認ください。
0120-037-354


