管理No.C6-58
							「三鷹駅」駅近、「香月駅前ビル」2階、3階の居抜き物件
賃料(坪単価)
								
																	47.30万円
(20,344円)
							(20,344円)
面積
								
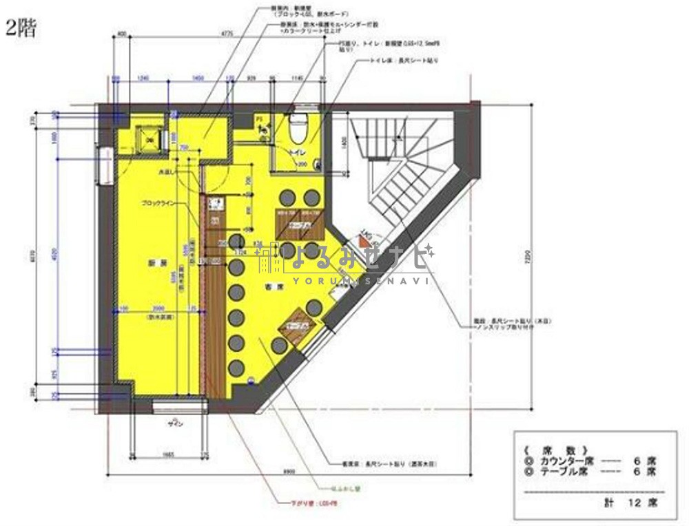
									23.25坪
(76.89㎡)
							(76.89㎡)
JR中央本線・JR中央線・JR中央・総武線・JR成田エクスプレス「三鷹駅」徒歩1分 
						「三鷹駅」徒歩1分、カウンター有
									0120-037-354
								
								
							カウンター有
								おすすめ
									複数階一括(1階含まない)
									バー
								ガールズバー
							物件情報
所在地
								東京都武蔵野市中町1丁目
							建物名
								香月駅前ビル
							所在階
								2階、3階
							部屋番号
								-
							使用部分面積
								76.89㎡
							建物/建物構造
								4階建/RC造
							エレベーター
								-
							築年数
								47年
							交通・最寄り駅
								JR中央本線・JR中央線・JR中央・総武線・JR成田エクスプレス「三鷹駅」徒歩1分
							前テナント(業種)
								レストラン
							現況・状態
								空
							出店可能業種
								
									バーのみ相談可
								
							賃料(税込)
																	473,000円
															賃料坪単価(税込)
								20,344円
							管理費(税込)
								0円
							共益費(税込)
								0円
							引渡時期
								即時
							保証金/償却
								-
							敷金/敷引き
								10ヵ月/3ヵ月
							礼金
								2ヵ月 946,000円
							造作譲渡代金
								2,200,000円
							契約期間
								5年
							更新料
								新賃料1ヵ月
							解約予告
								-
							看板製作費
								-
							看板使用料・
維持管理費
								維持管理費
-
							鍵交換費
								-
							店舗保険加入
								-
							賃貸保証会社加入
								-
							その他 業者指定項目
								-
							電気代
								-
							水道代
								-
							ガス代
								-
							駐車場台数
								-
							ゴミ処理費
								-
							害虫駆除費
								実施前に相談
							備考
								カラオケ使用時は防音対策必須。
風営法取得不可
							風営法取得不可
周辺地図
お問い合わせ管理No.C6-58
						当サイトを通じ物件をご契約される場合は、指定業者とのカラオケ・BGMサービス契約が必要です。詳しくは利用規約をご確認ください。
									0120-037-354
								
								
							
        
    








